CLG842 23E0012 空调系统 A/C System(R12)
CLG842 23E0012 空调系统 A/C System(R12)


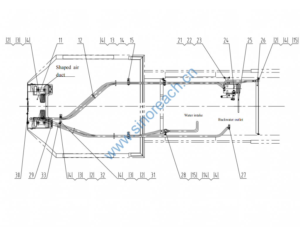
1 86A0084 出风口 Vent 6
2 00B0075 GB5783-86 螺栓 Bolt M8×20-8.8-Zn.D 14
3 06B0086 GB96-85 垫圈 Washer 8-140HV-Zn.D 12
4 06B0006 GB93-87 垫圈 Washer 8 20
5
46C0090 储液罐至蒸发器管 Liquid reservoir to
evaporator pipe 1
6
46C0827 蒸发器至压缩机管 Evaporaotor to
compressor pipe 1
7 46C0385 水管 Water pipe φ16 1
8 46C0104 水管 Water pipe φ16 1
11
46C0302 蒸发器总成 Evaporator
assembly 1
12 37B0029 GT-200ST 扎带 Tape 9
13 46C0301 管夹 Pipe clamp 2
14 00B0007 GB5783-86 螺栓 Bolt M8×16-8.8-Zn.D 6
15 06B0005 垫圈 Washer 8-140HV-Zn.D 10
16 46C0208 管夹 Pipe clamp 1
17 46C0023 水管 Water pipe φ16 1
18
46C0826 压缩机至冷凝器管 Compressor to
condenser pipe 1
19
46C0306 储液罐总成 Liquid reservoir
assembly 1
20
46C0846 冷凝器至储液罐管 Condenser to liquid
reservoir pipe 1
21 00B0022 GB5783-86 螺栓 Dryer M6×16-8.8-Zn.D 2
22 06B0024 GB97.1-85 垫圈 Washer 6-140HV-Zn.D 2
23 06B0003 GB93-87 垫圈 Washer 6 2
24 46C0011 SD-508 压缩机 Compressor 1
25
84A0133 17-560 冷气三角皮带 Cool air triangle
belt 1
26
46C0308 冷凝器总成
Condensor
assembly 1
27
46C0486 暖风进水阀
Warm air water inlet
valve 2
28
46C0309 电磁阀总成
Solenoid valve
assembly 1
29
46C0310 空调控制面板 Operate panel of
A/C 1
30 46C0311 新风过滤罩 Fresh air filter cover 1
31 20A3265 弯板 Bent plate 2
32 03B0021 螺母 Nut M8-8-Zn.D 2
33 09C0126 双管夹 Double pipe clamp 2
34 10A0294 板 Plate 2
35 84A0101 胶板 Rubber plate 2
36 00B0064 GB5783-86 螺栓 Bolt M10×55-8.8-Zn.D 1
